Imagine 35

Service auto autorizat RAR de vânzare | Mogosoaia | business ready

ID: P256419 Mogosoaia, Nord-Vest 13
780.000€
Descriere
Nu este doar o proprietate. Este un business auto complet echipat, pregătit să genereze venit din prima zi.
Situată în zona industrială Mogoșoaia, cu acces direct din centura București (zona Odăi), această proprietate oferă infrastructura completă pentru activitate auto sau industrială.
DATE GENERALE
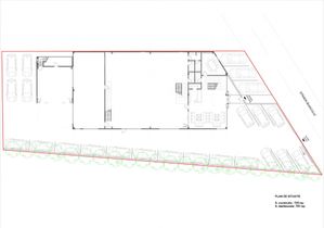
Suprafață construită la sol: 510 mp
Suprafață totală: 735 mp
Suprafață utilă aproximativă: ~685 mp
Parter: ~480 mp
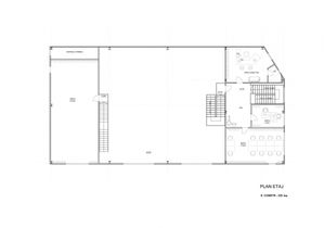
Etaj: ~205 mp
Teren: 1200 mp, împrejmuit
Construcție realizată în 2015.
STRUCTURĂ
Structură metalică
Pereți și acoperiș din panouri tip sandwich (izopan)
Înălțime industrială: 6 m – 9 m
Pardoseală beton elicopterizat + epoxidică
COMPARTIMENTARE (flux complet)
Proprietatea este organizată în multiple zone funcționale:
Recepție + sală de așteptare + showroom
Atelier mecanică (3 elevatoare + rampă)
Zonă vopsitorie complet echipată
Spălătorie + vulcanizare
Vestiar + grupuri sanitare
Depozitare (hotel anvelope)
Etaj: birouri + zonă administrativă
Flux operațional complet: recepție → producție → livrare
UTILITĂȚI
Curent electric (instalație completă)
Puț propriu + hidrofor
Fosă ecologică
Apă / canal la limită
Centrală 50KW (gaz / GPL)
Aer condiționat
Sistem drenaj + separator hidrocarburi
Supraveghere video
ACCES & CURTE
Acces direct din centura București
Curte betonată integral
Posibilitate acces și manevră TIR
Parcare 20–30 autovehicule
POTENȚIAL
Business auto complet
Rețea / franciză
Logistică ușoară
Investiție cu randament imediat
posibilitate extindere +225 mp
reorganizare până la 5 elevatoare
Informații suplimentare Informațiile prezentate au caracter orientativ și sunt preluate de la proprietar. Se acceptă orice modalitate de plată: cash sau credit ipotecar. Pentru mai multe detalii sau pentru programarea unei vizionări, nu ezitați să mă contactați folosind codul unic de proprietate :P256419 Vă aștept cu drag la vizionare! 📞 0741 053 194 📧 office@inovers.ro 🌐 inovers.ro
Caracteristici
  • ID:P256419
  • Nr. camere:13
  • S. utila:470.00 mp
  • S. per etaj:205 mp
  • S. curte:1200.00 mp
  • Comp.:Compartimentat
  • Nr. bai:3
  • Structura rezistenta:Metal
  • Regim inaltime:P+1
  • S. cladire:510 mp
Specificatii
Curent
Apa
Canalizare
Gaz
Acces internet
Centrala proprie
Calorifere
Aer conditionat
Lampi
Iluminat interior sistem LED
Localizare
Cosmin Corbeanu
Esti interesat de aceasta proprietate ?