Imagine 35

3 camere | Dr Taberei – Vlădeasa | 63 mp | Etaj 3 | Bloc reabilitat

ID: P250941 Bucuresti, Drumul Taberei 10
143.000€
Descriere
INOVERS IMOBILIARE vă prezintă s
pre vânzare un apartament cu 3 camere, situat în zona Dr Taberei, pe Strada Vlădeasa, într-o zonă liniștită și bine conectată la principalele puncte de interes din Sectorul 6.
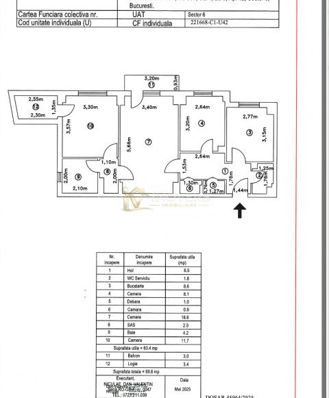
Apartamentul este amplasat la etajul 3 din 10 al unui imobil construit în 1983, recent reabilitat termic, și are o suprafață utilă de 63,4 mp, respectiv 69,8 mp cu balcoane.
Locuința este semidecomandată, bine întreținută și oferă un spațiu confortabil, potrivit atât pentru o familie, cât și pentru investiție.
Caracteristici principale:
3 camere
etaj 3 din 10
63,4 mp utili
69,8 mp cu balcoane
bloc reabilitat termic
apartament bine întreținut
Zona oferă numeroase avantaje, fiind ideală pentru familii:
aproximativ 17 minute de mers pe jos până la metrou Tudor Vladimirescu
stația de tramvai 41 în apropiere
acces rapid către școli, grădinițe și magazine
zonă liniștită cu multiple facilități în apropiere
Datorită poziționării și compartimentării, apartamentul reprezintă o alegere excelentă atât pentru locuință proprie, cât și pentru investiție.
Pentru mai multe informații sau pentru programarea unei vizionări, vă stăm la dispoziție.
INOVERS IMOBILIARE
Pentru mai multe detalii sau programarea unei vizionări, echipa Inovers Imobiliare vă stă la dispoziție ! Informații suplimentare Informațiile prezentate au caracter orientativ și sunt preluate de la proprietar. Se acceptă orice modalitate de plată: cash sau credit ipotecar. Pentru mai multe detalii sau pentru programarea unei vizionări, nu ezitați să mă contactați folosind codul unic de proprietate : P250941 Va aștept cu drag la vizionare! 📞 0741 053 194 📧 office@inovers.ro 🌐 inovers.ro

Caracteristici
  • ID:P250941
  • Nr. camere:3
  • Nr. dormitoare:2
  • S. utila:63.00 mp
  • S. balcoane:6.40 mp
  • S. utila totala:69.80 mp
  • S. construita:90.00 mp
  • Comp.:Semidecomandat
  • Confort:1
  • Etaj:Etaj 3
  • Nr. bucatarii:1
  • Nr. bai:2
  • Nr. balcoane:2
  • An constructie:1983
  • Tip imobil:Bloc
  • Regim inaltime:P+10
Specificatii
Curent
Apa
Canalizare
Gaz
Acces internet
Termoficare
Calorifere
Aer conditionat
Ferestre Termopan
Usa intrare Lemn
Usa interior Lemn
Wc serviciu
Apometre
Interfon
Lift
Localizare
Cosmin Corbeanu
Esti interesat de aceasta proprietate ?
Proprietati similare
TOP De vanzare Imagine 555
2 Camere | 1984 | | renovat | centrala | 11 min metrou Gorjului
Bucuresti, Gorjului 150.000€
2 camere 1 baie 47mp
TOP De vanzare Imagine 548
Garsonieră modernă | Exigent Plaza Residence Faza 5 | Etaj 2 | Mobilată & utilat
Bucuresti, Lujerului 135.000€
1 camera 1 baie 33.10mp
TOP De vanzare Imagine 521
Garsonieră modernă | Exigent Plaza Residence Faza 5 | investiție / locuit
Bucuresti, Lujerului 125.000€
1 camera 1 baie 36mp
TOP De vanzare Imagine 477
3 Camere 1981 | Metrou 7 min | 70 mp decomandat GHIRLANDEI | MILITARI |
Bucuresti, Gorjului 142.000€ 145.000€
3 camere 2 bai 62.50mp
TOP De vanzare Imagine 441
3 camere decomandat Crângași | Stradal | Metrou 9 min | 72 mp
Bucuresti, Crangasi 139.000€
3 camere 1 baie 62mp
TOP 0% comision De vanzare Imagine 451
3 camere DECOMANDAT | 1981 | 7 min metrou | 74 mp | DE RENOVAT
Bucuresti, Pacii 125.000€
3 camere 2 bai 66.95mp